19 Valley Crest Way

  • $148,500
  • Address:

    19 Valley Crest Way
    Bellingham, Washington 98229

  • Sq Ft: 7,582
  • Lot Sq Ft: 0.174 acres
← Back to main site

Description

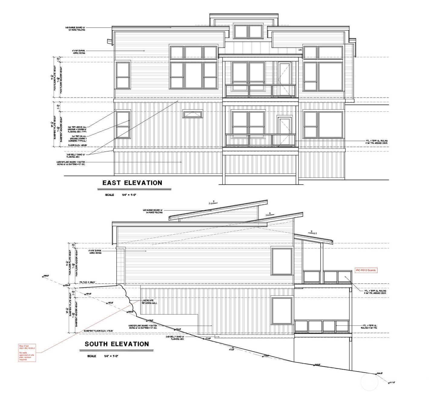
Fully permitted Lot in Sudden Valley seconds away from Gate 3. All permits are approved for a thoughtfully designed 2,580 SF home by JWR Design Inc. Architectural, structural, and civil plans are complete and ready to go, allowing you to start building June 1, 2026. All the hard work like design, engineering, and permitting has been done. Both county and Sudden Valley permits have been paid for. The project has already been appraised at 800k offering excellent value and a clear path to construction. A great opportunity to bring your new home to life in Sudden Valley.

Listing Details

Price:$148,500
Address:19 Valley Crest Way
City:Bellingham
State:Washington
Zip Code:98229
Subdivision:Sudden Valley
MLS:2438828
Square Feet:7,582
Acres:0.174
Lot Square Feet:0.174 acres
Please sign up for a Listing Manager account below to inquire about this listing

Based on information submitted to the MLS GRID as of Saturday, February 7th, 2026 12:05:03 AM. All data is obtained from various sources and may not have been verified by broker or MLS GRID. Supplied Open House Information is subject to change without notice. IDX information is provided exclusively for consumers’ personal noncommercial use, and it may not be used for any purpose other than to identify prospective properties consumers may be interested in purchasing. Data is deemed reliable but is not guaranteed. All information should be independently reviewed and verified for accuracy. Properties may or may not be listed by the office/agent presenting the information. The mortgage calculator tool does not include real-market mortgage information, and is provided by Elm Street Technology for consumer convenience to approximate possible costs.

Data services provided by IDX Broker
MLS Logo

<!--detailsPlatinumModern--><div id="IDX-detailsCourtesy" style="clear:both!important;display:block!important;padding:0.5rem 0!important;"><div id="IDX-detailsCourtesyLogo" style="display:inline-block!important;padding-right:0.5rem!important;vertical-align:middle!important;"><img src="https://s3.amazonaws.com/staticos.idxbroker.com/mls-logos/b045-logoURL2" alt="" /> The three tree logo represents a listing courtesy of NWMLS.</div>unknown Listing courtesy of Sterling Real Estate Group</div><div style="clear:both!important;"></div>